Land

159 2040, Orem

$549,900.00

Bedroom bedrooms

  • MLS #: 2080464
  • Address: 159 2040, Orem, UT 84058
  • Acres: 0.51
  • Subdivision: ERCANBRACK

Location Location

Agent Comments Agent Comments
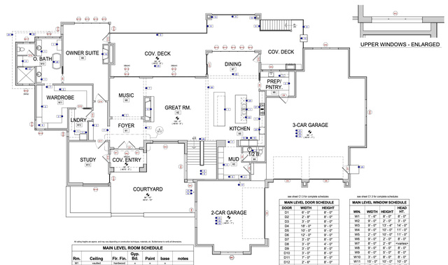
One of the Last 1/2 Acre Lots in Southeast Orem - $3M Dream Home Plans Included This is more than a lot-it's the foundation for your future. Located at the end of a quiet cul-de-sac in one of Southeast Orem's most sought-after areas, this rare acre offers space, privacy, and a prime setting for a showstopping estate. The gentle slope is perfect for a walkout basement, opening the door to stunning architectural possibilities. Included with the lot are full plans for a $3,000,000 luxury home-designed to make a statement. With walls of glass, expansive living spaces, and a seamless connection to the outdoors, the home captures everything high-end living should be. This isn't just a place to live-it's a chance to create something iconic. In a location where opportunities like this are almost gone, you're not just buying land-you're buying vision, prestige, and the freedom to build a legacy. This is the dream. Make it real.

Additional Features Additional Features
  • County: Utah
  • Property Type: Residential
  • Tax Number: 45-707-0001
  • Water/Sewer: Sewer: Available