Search
Prev
Next
Commercial-Lease

1268 2600, Woods Cross


Bedroom bedrooms

  • MLS #: 2077946
  • Address: 1268 2600, Woods Cross, UT 84087
  • Date Listed: 4/16/2025
  • Days on Market: 407
  • Acres: 1.06

Location Location

Agent Comments Agent Comments
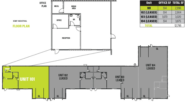
Total Building: 12,795 SF Lot Size: 1.06 Acres Power Per Unit: 200 AMP 120/208V 3-Phase 4-Wire Heating: Gas Forced Air Heating Lighting: LED 24,000 Lumens 3500k Suspended at 25 AFF Clear Height: 20' Loading: 12'x14' Grade Level Doors Column Spacing: Free-Span Construction Type: Split Face CMU Block Construction Floor: 6" Concrete Slab With #4 at 18" O.C. Parking: 18 Parking Stalls Zoning: I-1 Access: Quick Access to I-15, I-215, Redwood Road and Legacy Parkway Location: Located in the Highly Desirable Woods Cross Industrial Business Park

Interior Features Interior Features
  • Heat System: Forced Air

Exterior Features Exterior Features
  • Exterior: Warehouse

Additional Features Additional Features
  • County: Davis
  • Property Type: Industrial
  • Tax Number: 06-137-0003
  • Stories: 0
  • Year Built: 2022