Search
Prev
Next
Commercial-Lease

2608 BRIDGER RD, Salt Lake City


Bedroom bedrooms

  • MLS #: 2070335
  • Address: 2608 BRIDGER RD, Salt Lake City, UT 84104
  • Date Listed: 3/14/2025
  • Days on Market: 442
  • Acres: 1.67
  • Subdivision: PARK

Location Location

Agent Comments Agent Comments
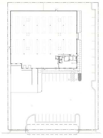
Available: 24,456 Square Feet - Office: 2,600 Square Feet - Warehouse: 21,856 Square Feet Lot Size: 1.67 Acres Secured Yard: 9,100 Square Feet Power: 600 AMP | 240v | 3-Phase | 4-Wire Sprinklers: ESFR Fire Suppression System Heating: Gas-Forced Air in the Warehouse Skylights: Throughout the Warehouse Clear Height: 24' Loading: Six (6) Loading Doors - Dock High: Four (4) w/ Levelers, Seals and Lights - Van Height : One (1)- Grade Level Doors: One (1) 12'x14' Column Spacing: 33'x36' Loading: Front Load Configuration Year Built: 2006 Security System: Wired Zoning: M-1 Access: Quick Access to I-15, I-80, I-215, SR-201 and Bangerter Highway Location: Within Minutes to Salt Lake City International Airport and Surrounding Amenities

Interior Features Interior Features
  • Cool System: Central Air
  • Heat System: Forced Air
  • Floors: Tile, Concrete
  • Interior: Alarm: Security

Exterior Features Exterior Features
  • Roof: Flat
  • Exterior: Paved Parking, Warehouse

Additional Features Additional Features
  • County: Salt Lake
  • Property Type: Industrial
  • Tax Number: 15-16-402-026
  • Stories: 0
  • Year Built: 2006